随着经济的高速发展,各种建筑辅助设施越来越繁杂且庞大,有时候就不得不对原有结构进行改造开洞,但开洞区不进行加固处理,则开洞区就会变成薄弱区,但房梁被开洞就需要加固吗?这还真要看实际情况才能确定!

有时在室内需要安装中央空调或者其他设备时,由于安装位置特殊施工人员需要在房梁进行开洞,懂得建筑结构的师傅会找正确位置,但是也有一些不懂的随便开洞导致出现安全隐患;还有的就是梁上开洞打到钢筋了,又心里打鼓,害怕梁会不会断掉。

那么遇到这种情况该如何进行处理呢?在发生这种情况以后,首先要确定在开洞过程中是否打断主钢筋。
1、没有打断主筋,只是打断个别箍筋,并且开洞较小,可以不进行加固处理;
2、打断部分主筋,可以采用粘贴碳纤维布或者粘贴钢板进行加固;
3、将所有钢筋全部打断,这种情况就比较危险了,由于下部钢筋主要起到抗弯作用。在这种情况下增大截面加固是比较合适的,具体的配筋受力计算要找专业的设计单位进行计算。
一般来说我们所谈到的开洞梁大多数都为普通钢筋混凝土开洞梁,且开洞后钢筋混凝土梁的刚度被削弱,使梁的挠度增大,以及开洞部位出现应力集中,使得梁的抗裂性降低,就有可能过早的发生斜截面受剪破坏或者受弯破坏。

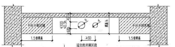
梁上开洞的总体原则和要求1)尽量开在梁跨中(跨中1/3)的位置,绝不应该开在梁端位置;
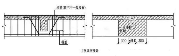
2)不要在主次梁交接处附近开洞;
3)洞口下缘应至少距梁底10公分以上,以免损伤或打断梁底钢筋;(只针对住宅楼梁,如果碰到跨度大,截面大的梁,应距离更远)

4)洞口距离梁上边缘,或者距板底也应该有一定距离,但由于有楼板的缘故,且由于取芯机操作空间的原因,这一条容易满足;5)梁开洞尽量避免损伤钢筋。

1)洞口开在梁端时,且洞口孔径不大,未损伤箍筋的。可以在洞口内敷设开洞大小相同的钢套管,套管与洞内侧采取加压注浆。从而钢套管起到防止洞口内侧应力集中造成的撕裂。2) 洞口开在梁端,且洞口较大,或者已打断箍筋的,除用灌浆料修复外,应在洞口两侧粘贴几道U形碳布箍。必要时,也可以采取粘贴U形钢板加固。

3) 洞口开在主次梁交接处附近的,可参照第1、2条修复加固
4) 洞口开在梁跨中合理区段,但由于距梁底过近,损伤或者打断梁底钢筋的。对于轻微损伤的,首先应参照第1条修复,然后在梁底粘贴碳布或者钢板进行加固。对于中重度损伤的或者钢筋已经断掉的,应采取加大截面进行加固。

梁底筋被打断的,还有一种方法就是凿开此处的混凝土,保留钢筋骨架,然后对受损的钢筋进行双绑条焊接连接,灌浆料修复后,再在梁底全部粘贴碳布或者钢板进行加固。
梁上开洞是一件非常谨慎的事情,要根据实际情况来决定的。在梁上开洞时,需要对梁的结构有一定的了解,才能进行开洞,遇到一些需要开洞的情况最好找专业人员来进行检测判断,并且及时做好相关的加固措施,选择适当的加固技术与优质安全的加固材料,才能从长远保障结构安全。